Ostatní dokumentace - veřejná

Zadávací řízení: Rekonstrukce potrubí SCHZ a SHZ na skladech Třemošná, Šlapanov, Sedlnice

Informace o dokumentu

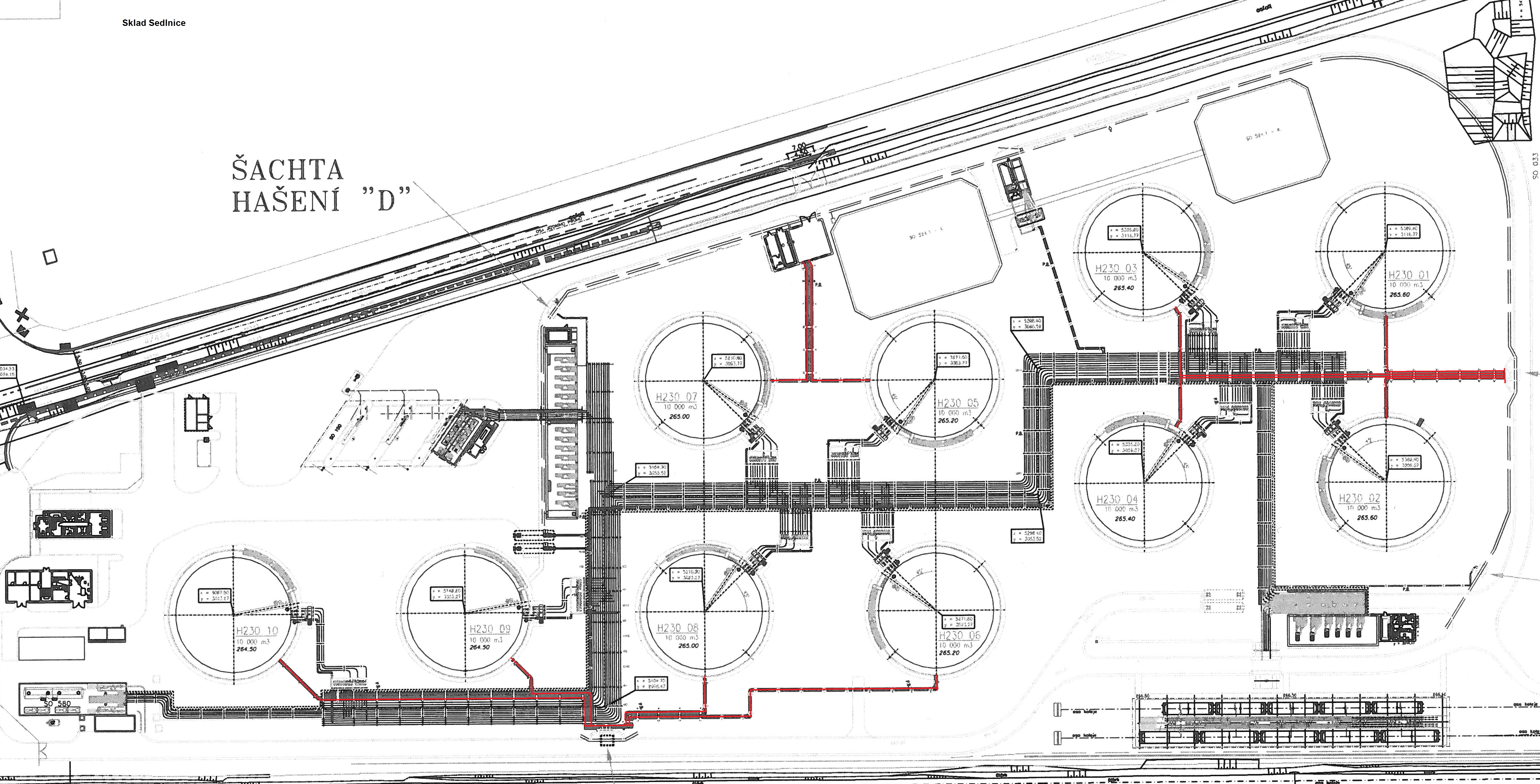
Název: Příloha zadávací dokumentace
Popis: Na předchozím Profilu uveřejněno 03. 07. 2015 13:35

Aktuální verze souboru

Jméno souboru: Obrázek PNG Priloha_c._5_Schema_sklad_Sedlnice.png
Velikost: 3,31 MiB
Aktuální verze souboru: 27.05.2016 14:15:54
Otisk MD5: 50768debe3af950b94e246bf9949b5d9
Otisk SHA256: 51c8f51ce71a7e3dd1e73a157801151d1f88d054e6874ee549c7dc01a27ad34d

Historie souboru

Datum Název Popis Typ dokumentu Jméno souboru Velikost
A 27.05.2016 14:15:54 Příloha zadávací dokumentace Na předchozím Profilu uveřejněno 03. 07. 2015 13:35 ostatní dokumentace - veřejná - Priloha_c._5_Schema_sklad_Sedlnice.png 3,31 MiB